Nakło nad Notecią

Mieszkanie na sprzedaż

Opis nieruchomości

Słoneczne, ustawne 3 pokoje, ul. AL. Mickiewicza

Prowizję biura nieruchomości w całości pokrywa sprzedający, co oznacza że kupujesz bez prowizji. 


Oferta na wyłączność
Klucze w biurze



Przedstawiam bardzo jasne i przestronne mieszkanie w spokojnej lokalizacji a jednocześnie wszędzie blisko.
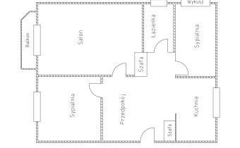
Mieszkanko zlokalizowane jest w bloku dwu piętrowym na drugim piętrze. Nie wymagające żadnych nakładów finansowych, chyba że chcesz mieć złote klamki - no to musisz je sobie wymienić. Pokoje są bardzo ustawne i można je przestrzennie zaaranżować. Ściany wykończone gładziami, na podłogach pokoi i przedpokoju położony parkiet natomiast łazienka i kuchnia wykończone glazurą. Nawiązując do kuchni, za sprawą wyburzenia części ściany pomieszczenie zyskało na wielkości i przestronności a tym samym swobodniejszym  poruszaniu się. Warto dodać że kuchnia jest wyposażona w wszystkie niezbędne sprzęty AGD, które wraz z zabudową kuchenną pozostają w cenie Łazienka razem z wc oraz  wanną, oknem wpuszczającym dużo światła w stonowanej kolorystyce. Oczami wyobraźni można zobaczyć przyszłego gospodarza tego gniazdka jak zatapia się w swoim domowym SPA. Duży przestronny przedpokój pozwolił na umieszczenie w nim sporej zabudowanej szafy oraz drugiej wolnostojącej lustrzanej i przy tym pozostaje dużo przestrzeni do swobodnego poruszania. Kwintesencją jest skąpany w słońcu salon z wyjściem na balkon z którego ukazuje się nam widok na panoramę miasta i tu należy podkreślić wartość dodaną, czyli brak okno w okno sąsiadów. Stwarza to niezwykłe poczucie intymności no i dużo światła w pomieszczeniach.

Wszystkie widoczne meble mogą pozostać w cenie.
Na uwagę zasługuje też nie małych rozmiarów piwnica w której pochowamy wszystkie przydasie.


Chcesz uzyskać więcej wiedzy na temat tej nieruchomości lub zobaczyć ją w realu, dzwoń 698-916-773 Katarzyna Jedynak odpowie na Twoje pytania.


Szkoły, przedszkola, basen, sklepy i inne punkty użyteczności publicznej zaledwie rzut beretem od tej nieruchomości. Czego chcieć więcej. Może jest to miejsce stworzone właśnie dla Ciebie!!!



Mając na uwadze bezpieczeństwo klientów sprzedających, a często także na ich wyraźne życzenie, nie podajemy adresów nieruchomości bez podpisania uprzednio umowy o pośrednictwo w kupnie lub najmie. 
Nawet jeśli znajdziesz samodzielnie tą nieruchomość, nie dzwoń nie nagabuj, właściciele sobie tego nie życzą, uszanuj ich wolę.

Wszelkie podane przez Biuro informacje nie są ofertą w rozumieniu Kodeksu Cywilnego

Biuro nieodpłatnie udziela wsparcia w uzyskaniu kredytu na korzystnych warunkach.


 

Nota prawna

Opis oferty zawarty na stronie internetowej sporządzany jest na podstawie oględzin nieruchomości oraz informacji uzyskanych od właściciela, może podlegać aktualizacji i nie stanowi oferty określonej w art. 66 i następnych K.C.

Szczegóły oferty

Symbol oferty JDK-MS-1634
Powierzchnia 65,96 m²
Powierzchnia użytkowa 56,99 m²
Liczba pokoi 3
Piętro 2
Rodzaj budynku blok
Technologia budowlana beton, cegła
Standard
Opłaty w czynszu wywóz śmieci, fundusz remontowy, Części wspólne, CO, administracja
Opłaty wg liczników gaz, prąd, woda
Liczba pięter w budynku 2
Piwnica 8,97 m²
Stan lokalu do odnowienia
Stan prawny Odrębna własność lokalu
Mies. czynsz admin. 724 PLN
Okna PCV 3 szyby, ciepły montaż
Instalacje dobre
Balkon średni
Liczba balkonów 1
Rok budowy 1995
Widok panorama miasta
Gaz tak - miejski
Woda tak - miejska
Dojazd asfalt
Otoczenie działki zabudowane
Ogrzewanie C.O. miejskie
Usytuowanie trójstronne
Drzwi antywłamaniowe tak

Pomieszczenia

Powierzchnia pokoi 19/10/8 m2
Podłogi pokoi parkiet
Typ kuchni otwarta na przedpokój
Rodzaj kuchni jasna z oknem
Powierzchnia kuchni 9 m2
Podłoga kuchni gres
Typ łazienki razem z wc
Liczba łazienek 1
Powierzchnia łazienki 4,5 m2
Glazura łazienki nowego typu
Podłoga łazienki gres
Wyposażenie łazienki umywalka, wanna, WC
Liczba przedpokoi 1
Powierzchnia przedpokoi 6 m2
Podłoga przedpokoi parkiet

Kalkulator kredytowy

PLN
%
Wysokość raty

Kalkulator kosztów

PLN
PLN
PLN
PLN
PLN
PLN
%
PLN
Podatek od czynności cywilno-prawnych
Taksa notarialna (opłata notarialna)
VAT od taksy notarialnej (opłaty notarialnej)
Wniosek do WKW
VAT od wniosku do WKW
Prowizja agencji nieruchomości
VAT od prowizji agencji nieruchomości
Wypisy aktu notarialnego - około
RAZEM (cena + opłaty)

Uwaga: mogą wystąpić dodatkowe opłaty za założenie księgi wieczystej oraz ustanowienie hipoteki.

Napisz do nas

Proszę wypełnić to pole
Proszę wypełnić to pole
Proszę wypełnić to pole
Proszę wypełnić to pole
Trwa wysyłanie...

Ta strona wykorzystuje pliki cookies w celach statystycznych oraz w celu dostosowania naszych serwisów do indywidualnych potrzeb klientów. Zmiany ustawień dotyczących plików cookie można dokonać w dowolnej chwili modyfikując ustawienia przeglądarki. Korzystanie z tej strony bez zmian ustawień dotyczących cookies oznacza, że będą one zapisane w pamięci urządzenia.

rozumiem